Renton 2020, LLC

Renton, WA

Project Details

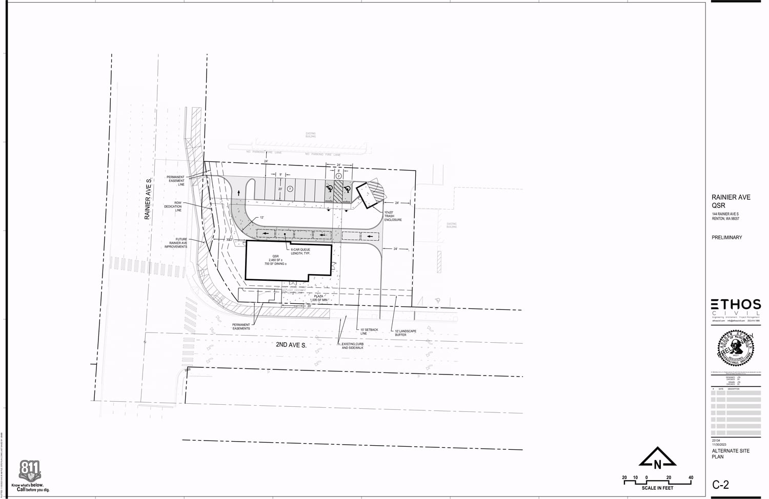
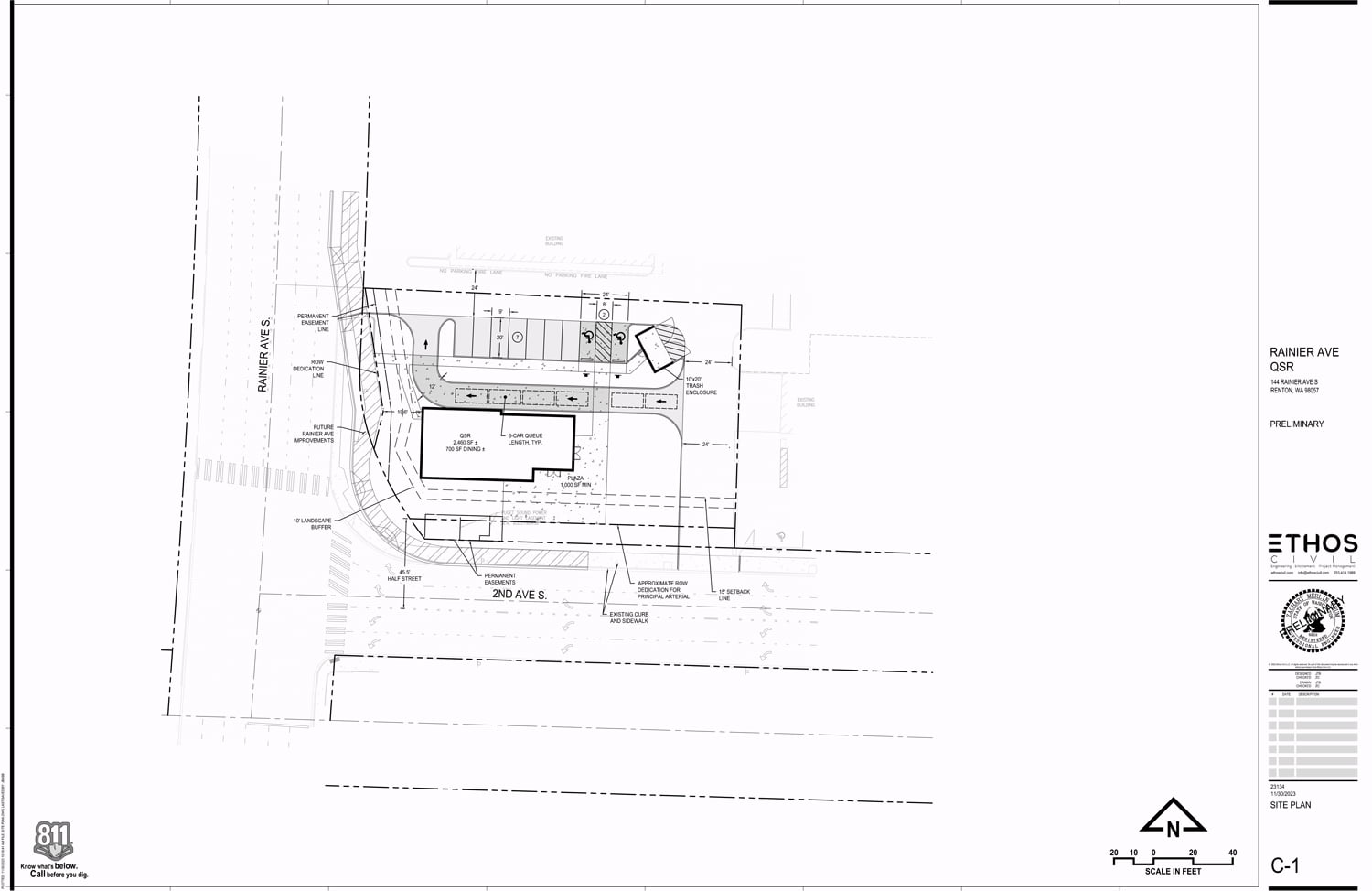
This project is 0.53 acre of land that had a 6,627 square foot vacant commercial building on it. The former Denny’s restaurant has since been demolished. RESIGHT purchased the property from the Archdiocese of Oakland, who acquired the site through a former parishioner.
Rainier Ave Site Plan
Rainier Ave Site Plan

Background

0.53 acre property used as an automotive garage and gasoline fueling station.

Our Solution

Redevelopment on the now vacant site will allow the remediation plan to take place.

Challenges

No historical documentation for the removal of the former underground storage tanks (USTs). Further investigations conducted confirmed there are remaining impacts present in both soil and groundwater.

Impact

Approximately $75 thousand dollars of private investment has been placed into this blighted property.

Have a project in mind?

DISCOVER

More projects we're proud of.